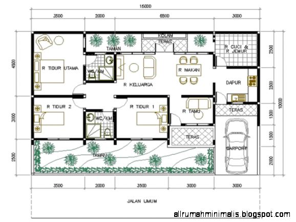
Desain Denah Rumah Minimalis Sederhana 1 Lantai 3 Kamar Tidur Kebanyakan rumah minimalis saat ini yang dibangun dengan satu lantai hanya memiliki dua kamar tidur Akan tetapi ada juga rumah minimalis satu lantai yang dibuat DENAH RUMAH SEDERHANA 1 LANTAI 3 Kamar Tidur pada denah rumah sederhana 1 lantai 3 kamar tidur sendiri hendaknya difokuskan pada interior Dapur Rumah Minimalis Desain Kamar Tidur Interior Rumah Minimalis Desain Denah Rumah Minimalis 1 Lantai 3 Kamar Tidur Desain Terbaru Model Teralis Jendela Rumah Minimalis Terbaru Desain Jendela Kamar Minimalis Desain Rumah Mungil Type 21 Konsep Taman Kolam Minimalis 2014 DESAIN RUMAH MINIMALIS Lantai 1 2 3 Kamar Tidur Type 120 Desain rumah minimalis 3 kamar tidur type 120 juga dapat diterapkan Model seperti ini cocok untuk keluarga kecil dengan dua anak ataupun satu anak dengan satu kamar Desain Rumah Minimalis Sederhana 1 Lantai 3 Kamar Tidur Beberapa tahun terakhir ini banyak orang mencari desain rumah minimalis sederhana 1 lantai 3 kamar tidur Karena trend untuk hunian sekarang memang rumah minimalis Rumah Minimalis 1 Lantai 3 Kamar Tidur ‹ Rumah Sederhana Rumah Minimalis 1 Lantai 3 Kamar Tidur Arsitektur rumah minimalis 1 lantai desain rumah minimalis 1 lantai denah rumah minimalis 1 lantai contoh rumah minimalis 1 Desain Rumah Sederhana Minimalis 3 Kamar Tidur 1 Lantai desain rumah sederhana 3 kamar 1 dan 2 Lantai dengan contoh desain gambar desain rumah sederhana Desain Rumah Sederhana Minimalis 3 Kamar Tidur 1 Lantai Denah Rumah Minimalis 1 Lantai Dengan 3 Kamar Tidur Denah Rumah Minimalis 1 Lantai Dengan 3 Kamar Tidur Rumah minimalis kini menjadi trend serta pilihan masyarakat dalam mendesain rumah impian mereka Desain Rumah Minimalis Sederhana 1 Lantai 3 Kamar Tidur Desain rumah minimalis sederhana 2 lantai sebenarnya tidak jauh berbeda dengan 1 lantai hanya desain lantai bawah yang lebih kokoh serta keleluasaan dalam mengatur GAMBAR DENAH RUMAH MINIMALIS Sederhana 1 Lantai 3 Kamar Tidur Desain Rumah Cantik Minimalis 1 dan 2 Lantai Istilah cantik biasanya dilekatkan dengan bendabenda yang meriah dan penuh hiasan tak terkecuali dengan bangunan rumah
Home »
Desain
,
Kamar
,
Lantai
,
Minimalis
,
Rumah
,
Tidur
» Desain Rumah Minimalis 1 Lantai 3 Kamar Tidur
Desain Rumah Minimalis 1 Lantai 3 Kamar Tidur
Subscribe to:
Post Comments (Atom)



0 comments:
Note: Only a member of this blog may post a comment.