Sketsa Rumah Sederhana dengan Biaya Minimal Desain Model Rumah
Umumnya sketsa rumah sederhana
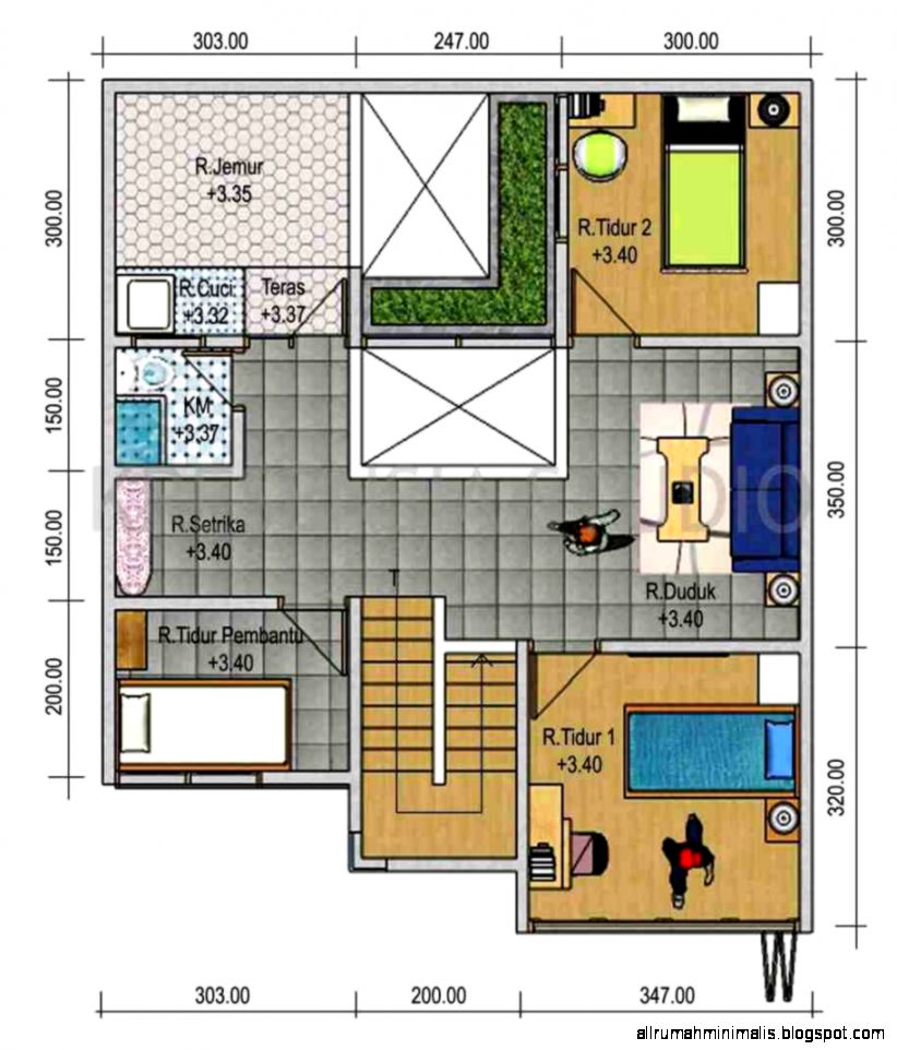
Gambar Denah Rumah Minimalis Sederhana 1 lantai dan 2 lantai
Denah rumah minimalis 1 lantai
Inspirasi Rumah Minimalis 1001 Ide Gambar Interior Eksterior Taman Ruang Keluarga Kamar Tidur Kamar Mandi Rumah Minimalis desain rumah minimalis sederhana desain rumah minimalis sederhana desain rumah minimalis sederhana Mojo Sketsa Rumah rumah minimalis gambar rumah Mojo Sketsa Rumah rumah minimalisgambar rumahdesain rumahrumah adat tradisionalarsitektur rumahlayout rumahdenah rumahdesign rumahmodel rumahcontoh rumah Gambar Desain Rumah Minimalis 2015 Sketsa Denah Rumah Apa itu Konsep Desain Rumah Modern Model Minimalis 2015 Inspirasi interior exterior denah sketsa fasad gambar 3D rumah sederhana 2015 ukuran type rumah 70 45 desain rumah minimalis modern Beberapa contoh sketsa dan denah rumah minimalis modern 2 lantai mulai dari tipe 36 tipe 45 dengan bentuk sederhana tapi modern Comments on Gambar Rumah Sederhana 1 Lantai Desain Arsitektur Interior Eksterior Rumah Terbaru 2014 Gambar Model Denah Sketsa Rumah Minimalis Sederhana Modern Mungil Type 21 36 45 54 70 dll Teras 2015 Teras 2015 merupakan salah satu model terbaru dalam desain rumah minimalis 2015 sederhana dan modern yang ada di situs Cat Ruang Tamu Moden ‹ Rumah Minimalis Sederhana Cat Ruang Tamu Moden Foto dan gambar dengan judul Cat Ruang Tamu Moden Rumah Minimalis Sederhana dan Gambar Model Rumah Minimalis Desain Modern dan Sederhana Contoh Rumah Tipe 70 Minimalis Elegan Foto dan gambar dengan judul Contoh Rumah Tipe 70 Minimalis Elegan Rumah Minimalis Modern dan Gambar Model Rumah Minimalis Desain Modern dan Sederhana Cat Tembok Untuk Lantai Gelap ‹ Rumah Minimalis Modern Rumah Minimalis 2 Lantai Type 36 Modern yang kami sediakan merupakan foto atau gambar dengan kualitas terbaik dengan konsep sederhana dan minimalis namun elegan



0 comments:
Note: Only a member of this blog may post a comment.